| Salut Sergio,
Je suis preneur car j'ai construit 2 tribunes selon tes plans, et j'attendais tes info pour savoir comment faire les toits. 2 autres tribunes seront construites plus tard.
Tu peux m'envoyer un mp, tu dois avoir mon adresse mail.
Merci.
Salut crazycowboy! tu as vu sur les photos, j'ai découpé les toits, alors les chutes,c'est ça:

voilà, c'est là que j'ai coupé, dis moi si les chutes t'intéresse toujours, regarde bien la photo de la chute (y'en a 4) Salut! Sergio Auteur Message Date du message : vendredi 4 janvier 2008 à 23h05
Sergio,
Oui, je suis quand même preneur car je pense mettre à l'arrière une partire pleine, et devant la partie que tu as en plus.

Salut. Un cowboy regarde toujours devant, jamais derrière. En course, c'est pareil !!! Hiiiiiaaaaaah! Auteur Message Sergio Jedï d'honneur Genre : Masculin Masculin Inscription : 06/02/2007 Messages : 2.128
Voir plus
Date du message : dimanche 2 mars 2008 à 18h50
| defray a écrit : | beau boulot SERGIO!!
on y voit qu´du feu!! 
vivement les photos de la mise en place sur le circuit!!
Salut!! ça y est c'est sur le circuit!! (ça faisait 2 mois que je l'avait pas vu )
les dernières photos:





Salut!! Sergio Auteur Message Date du message : dimanche 2 mars 2008 à 18h56
Manou
Auteur Message Date du message : lundi 3 mars 2008 à 11h17
| Manou a écrit : | Tu m'enerves tu bosses trop bien
ouai !! ça a d'la gueule !! meme si je trouve le rouge !!! heu !!! comment dire !!! trop rouge !! 
mais c'est térrible quand meme !!
bravo !!! . . . . . . L'humour noir, c'est comme le boudin blanc, c'est une question de gout ... Auteur Message defray Lord of the ring 
Genre : Masculin Masculin Inscription : 04/01/2007 Messages : 1.448 Piste : scalex,Mg vanquish. Nombres de voitures : 2 ans
Voir plus
Date du message : lundi 3 mars 2008 à 22h32
[url=http://defslotblog.blogspot.com/][img]http://img217.imageshack.us/img217/5613/1002187copiaxm6.jpg[/img][/url] Auteur Message Date du message : jeudi 6 mars 2008 à 19h28
sympa ces tribunes!
connais-tu la provenance de tes personnages assis? Auteur Message Sergio Jedï d'honneur Genre : Masculin Masculin Inscription : 06/02/2007 Messages : 2.128
Voir plus
Date du message : jeudi 6 mars 2008 à 21h25
| racingniko a écrit : | | sympa ces tribunes!
connais-tu la provenance de tes personnages assis?
Salut! oui, la plupart c'est scalextric, et les autres ? glanés un peu partout. je me suis renseigné chez Hornby France mais c'est terminé...rupture et encore merci à Harley qui m'en à passé voir la photo de la tribune scalex (je pense une des dernière qu'il y avait en stock)
 Sergio Auteur Message Date du message : dimanche 9 mars 2008 à 19h35
Auteur Message willythekid72 Lord of the ring 
Genre : Masculin Masculin Inscription : 31/10/2010 Messages : 1.562 Piste : SCALEXTRIC Nombres de voitures : 50
Voir plus
Date du message : lundi 1 novembre 2010 à 21h23
Sergio, de mieux en mieux, c'est tout simplement génial.
Peux-tu me fournir les plans?
Un grand merci, Willy. Auteur Message Sergio Jedï d'honneur Genre : Masculin Masculin Inscription : 06/02/2007 Messages : 2.128
Voir plus
Date du message : lundi 1 novembre 2010 à 22h06
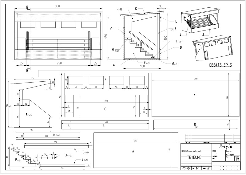
willythekid72 a écrit :Sergio, de mieux en mieux, c'est tout simplement génial. Peux-tu me fournir les plans? Un grand merci, Willy.
si tu veux , je peux t'envoyer ce plan (original en mail)

tu peux modifier la longueur , en changeant les cotes de débits , comme à fait Tiloup.

c'est ça que tu veux?
voilou
Sergio Auteur Message peugeot908 Bargeots 
Genre : Masculin Masculin Inscription : 17/10/2009 Messages : 298 Nombres de voitures : depuis septembre 2009
Voir plus
Date du message : lundi 1 novembre 2010 à 22h28
sergio, Je te déteste, tu es super fort. Bravo Audi mais Peugeot se vengera l’année prochaine au 24H du Mans 2012 Vive PEUGEOT Auteur Message willythekid72 Lord of the ring 
Genre : Masculin Masculin Inscription : 31/10/2010 Messages : 1.562 Piste : SCALEXTRIC Nombres de voitures : 50
Voir plus
Date du message : mardi 2 novembre 2010 à 19h16
OUI, comme ça je pourrais m’entraîner pour un débutant comme moi et chercher les composants pour en construire une. Merci, Willy.
Surveiller
Imprimer
|
|
|
|