Salut !
Voici d'après les photos de DDA , le projet 3D pour une longueur totale de 1m200 à ech:1/32 ème pour déterminer les plans....
Récap. des photos.....

le projet 3D.....

Sergio
Date du message : mardi 2 juin 2009 à 13h55
Salut !
Voici d'après les photos de DDA , le projet 3D pour une longueur totale de 1m200 à ech:1/32 ème pour déterminer les plans....
Récap. des photos.....

le projet 3D.....

Sergio
Date du message : mardi 2 juin 2009 à 14h12
Salut !
voici les nomenclatures....97 pièces !!!!!!!!

et voici les plans (réduits pour le forum )
plan d'ensemble.....
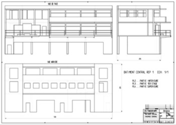
plan bâtiment central.....PL1
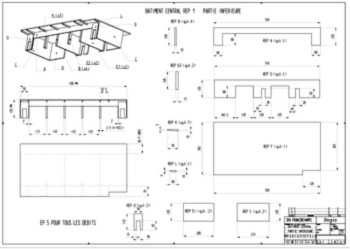
plan bâtiment central partie inf.....PL2
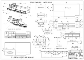
plan bâtiment central partie 1er étage.....PL3
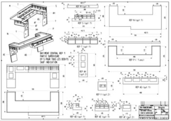
plan bâtiment central partie sup.....PL4
plan bâtiment droit... PL5
plan bâtiment gauche...PL6
plan du socle avec implantation au sol (facultatif )....PL7
voilou !!
Sergio
Message modifié le jeudi 4 juin 2009 à 11h38 par Sergio
all4tabs
Sloteur Fou
Genre : Masculin Masculin Inscription : 04/12/2008
Messages : 900
Piste : Mustang Shelby GT 500 KR
Nombres de voitures : décembre 2008
Date du message : mardi 2 juin 2009 à 14h12
Super boulot Sergio.
@+
Olive et bon Slot
AmericaBlst en N-Digital Blst
New Man Car Fan
Mon Blog : http://americablst.e-monsite.com/
Nico
Visiteur
Date du message : mardi 2 juin 2009 à 14h27
pfiouuu, ben là c'est du lourd mon Sergio!!!! vivement le début de la fabrication!
Nico
will666
Jedï d'honneur
Genre : Masculin Masculin Inscription : 29/01/2006
Messages : 2.476
Nombres de voitures : Depuis l âge de mes 5 ans
Date du message : mardi 2 juin 2009 à 14h40
alors là, big projet.
très gros chantier en perspective, et connaissant la qualité de tes réalisations, ca va claquer
![]()
all4tabs
Sloteur Fou
Genre : Masculin Masculin Inscription : 04/12/2008
Messages : 900
Piste : Mustang Shelby GT 500 KR
Nombres de voitures : décembre 2008
Date du message : mardi 2 juin 2009 à 16h00
Du très lourd même, dommage que tout le monde n'a pas la place pour le mettre. Dommage moi qui était impatient de démarrer je suis tombé sur le cul. Mais je vais suivre le post pour voir l'avancer du montage. Je vais en pleurer à chaque fois mais bon faut ce faire une raison.
@+
Olive et bon Slot
AmericaBlst en N-Digital Blst
New Man Car Fan
Mon Blog : http://americablst.e-monsite.com/
forza_alfa
Visiteur
Date du message : mardi 2 juin 2009 à 17h14
joli! tu bosses dans tout ce qui est dessin technique? car on dirait une notice de sciences industrielle ![]()
Poignée bien essorée, moulin bien rincé!
crazycowboy
Sloteur Fou
Date du message : mardi 2 juin 2009 à 17h14
Mace_Windu a écrit :Mais je vais suivre le post pour voir l'avancée du montage. Je vais en pleurer à chaque fois mais bon faut se faire une raison.

Du Sergio, tout simplement
![]()
Un cowboy regarde toujours devant, jamais derrière. En course, c'est pareil !!! Hiiiiiaaaaaah!
Date du message : mardi 2 juin 2009 à 18h43
crazycowboy a écrit :Mace_Windu a écrit : Mais je vais suivre le post pour voir l'avancée du montage. Je vais en pleurer à chaque fois mais bon faut se faire une raison.
Du Sergio, tout simplement![]()
Salut !
Stop les gars ! les plans c'est pas pour moi (ou peut être plus tard) car je n'ai plus de place sur mon circuit....c'est complet
mais pour un gars du ''fofo" qui m'a même proposé une voiture contre les plans originaux.....c'est sympa ! hein? ......et je les ai mis pour si ça tente quelqu'un (y'a du taf !! mais ça devrait faire une belle déco. !!)
voilou
Sergio
gildas44470
Jeune Padawan sloteur
Genre : Masculin Masculin Inscription : 24/02/2009
Messages : 43
Piste : scx
Nombres de voitures : 6 mois
Date du message : mardi 2 juin 2009 à 19h47
un projet de ouf !!!!
en quelle matière pour réalisé se super projet ![]()
encor bravo à sergio
(un vrai architecte du slot) ![]()
mon circuit: http://www.i-services.net/membres/forum/messages.php?uid=78493&sid=37815&idsujet=1365765&pgi=0
all4tabs
Sloteur Fou
Genre : Masculin Masculin Inscription : 04/12/2008
Messages : 900
Piste : Mustang Shelby GT 500 KR
Nombres de voitures : décembre 2008
Date du message : mardi 2 juin 2009 à 20h05
gildas44470 a écrit :
![]()
![]()
![]()
![]()
![]()
![]()
un projet de ouf !!!!en quelle matière pour réalisé se super projet
encor bravo à sergio
(un vrai architecte du slot)
Du papier plume ou du balsa et de la place sur ta piste ![]()
@+
Olive et bon Slot
AmericaBlst en N-Digital Blst
New Man Car Fan
Mon Blog : http://americablst.e-monsite.com/
Denis
Sloteur Fou
Genre : Masculin Masculin Inscription : 13/09/2006
Messages : 825
Nombres de voitures : depuis 1967
Date du message : mardi 2 juin 2009 à 20h05
comme dirait Roberto bennini , avec l'accent italien
C'est époustouflant!!!!!!!!!
Denis.
TILOUP
Lord of the ring
Date du message : mardi 2 juin 2009 à 22h38
Salut Sergio
Superbe ce projet.......!!! :D
Là!!.........y a du boulot les gars !!
TILOUP ![]()
forza_alfa
Visiteur
Date du message : mardi 2 juin 2009 à 23h04
ton gars il t'a fait ça bien dis donc^^
Poignée bien essorée, moulin bien rincé!
BBJOLY
Visiteur
Date du message : mercredi 3 juin 2009 à 09h57
je vais suivre ca avec attention..........
LE FREINETARD VOUS FAIT VOIR DU DECOR !!!!!!
kinou
Bargeots
Genre : Masculin Masculin Inscription : 20/12/2008
Messages : 316
Piste : VENTURI
Nombres de voitures : 2008
Date du message : mercredi 3 juin 2009 à 12h40
Génial Sergio !!!!!
---------
**CONDUIT AVEC TES PIEDS PAS COMME TES PIEDS !!!!!!**
Selon les statistiques, il y a 1 personne sur 5 qui est déséquilibrée. S'il y a 4 personnes autour de toi et qu'elles te semblent normales.......c'est pas bon !! (Jean-Claude VAN DAMN)
Gentlemandriver
Visiteur
scolaticien
Bargeots
Genre : Masculin Masculin Inscription : 28/02/2009
Messages : 186
Nombres de voitures : 1 ANS
Date du message : jeudi 4 juin 2009 à 00h59
Génial Sergio !!!!!
je vient de voir pour qui, et au vue de son circuit,
je croie pouvoir affirmer que ton travail est entre de bonne mains
pour un rendu du plus belle effet 
afaire a suivre
[url=http://www.i-services.net/membres/forum/messages.php?uid=78493&sid=37815&idsujet=1343951&pgi=1] mon circuit[/url]
guy34
Sloteur Fou
Genre : Masculin Masculin Inscription : 28/01/2009
Messages : 606
Piste : SCX SCALEX ET ....TOUT CE QUI ROULE!!!!!!
Date du message : jeudi 4 juin 2009 à 22h19
ben dis donc ça me trou le c.....!!!!!!!!!!!!!!!!!
MA-GNI-FI-QUE!!!!
[url=http://www.i-services.net/membres/forum/messages.php?uid=78493&sid=37815&idsujet=1348910&pgi=0]Mon circuit[/url]
breizhslot29
Jeune Padawan sloteur
Genre : Masculin Masculin Inscription : 22/05/2009
Messages : 24
Nombres de voitures : 3 ans par alternance
Date du message : mardi 9 juin 2009 à 21h21
magnifique beaucoup de boulot en perspective même si les plans c'est déjà quelque chose de costaud
Bon courage pour la réalisation
[img]http://tbn0.google.com/images?q=tbn:LeoQCYPhMPyP_M:http://techno-science.net/illustration/Transports/Voitures/Rinspeed/sQuba/squba-plongee-1.jpg[/img]

