salut Patrick
ça fait combien là stp (car j'en fait un autre
)

sergio
Date du message : vendredi 19 juin 2009 à 20h03
salut Patrick
ça fait combien là stp (car j'en fait un autre
)

sergio
Gentlemandriver
Visiteur
cupyrov
Lord of the ring
Genre : Masculin Masculin Inscription : 24/01/2009
Messages : 1.278
Piste : ford
Nombres de voitures : 1 an
Date du message : vendredi 19 juin 2009 à 22h12
Gentlemandriver a écrit :Allez, qui nous le fait ? Pas de faux prétexte, il y a tout...
moi, si je trouve le temps cet été, après les stand biensur
Gentlemandriver
Visiteur
Gentlemandriver
Visiteur
cupyrov
Lord of the ring
Genre : Masculin Masculin Inscription : 24/01/2009
Messages : 1.278
Piste : ford
Nombres de voitures : 1 an
Date du message : samedi 20 juin 2009 à 09h04
Gentlemandriver a écrit :cupyrov a écrit : Gentlemandriver a écrit : Allez, qui nous le fait ? Pas de faux prétexte, il y a tout...
moi, si je trouve le temps cet été, après les stands biensur
Le support fait 2.70 x 11.10, c'est pas petit.
je parlais de la tribune, le circuit que tu as dessiné est génial, mais je vais quand même d'abord essayer celui qui est prévu et puis 11m pas la place pour le moment.
Date du message : dimanche 21 juin 2009 à 23h19
Salut!
les escaliers sont ok (ouf!!!) voilou....




Sergio
Gentlemandriver
Visiteur
crazycowboy
Sloteur Fou
Date du message : lundi 22 juin 2009 à 08h41
Oups, c'est magifique. Bon courage pour la réalisation
![]()
Un cowboy regarde toujours devant, jamais derrière. En course, c'est pareil !!! Hiiiiiaaaaaah!
Message modifié le lundi 22 juin 2009 à 08h41 par crazycowboy
Date du message : lundi 22 juin 2009 à 18h39
C'est parti !! pour les plans....

Sergio
Gentlemandriver
Visiteur
ptijey
Jeune Padawan sloteur
Date du message : lundi 22 juin 2009 à 19h56
hey comment tu gére bien avec ton logiciel(c'est quoi?)et la ta du boulot pour la fabrication avec qu'elle matiére,carte plastique,cartons....
Date du message : jeudi 25 juin 2009 à 23h13
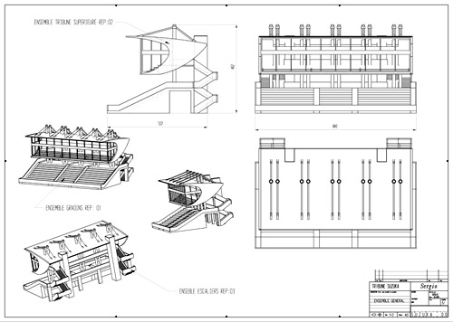
Salut !
voilou , les plans de la tribune sont finis !
il n'y a que.....128 pièces à assembler !!
les nomenclatures pour si retrouver....

et puis.....9 plans pour ensembles et détails tous cotés.....



A+ Sergio
kangle
Sloteur Fou
Date du message : vendredi 26 juin 2009 à 09h05
T'es un grand malade Sergio mais encore Bravo
Superbe tribune en perspective
Un spécial maquette de ricaines [url=http://koolestkruzers.com]ICI[/url]
Sh1v3r
Lord of the ring
Genre : Masculin Masculin Inscription : 06/11/2005
Messages : 1.524
Piste : Bois
Nombres de voitures : 20
Date du message : vendredi 26 juin 2009 à 10h16
Superbe plan, vivement que je termine mes plans initiales et que je te les envois pour que tu me les finalises ![]()
**************************************************
Le silence tue le savoir et inculque l'ignorance.
Message modifié le vendredi 26 juin 2009 à 10h17 par Sh1v3r
all4tabs
Sloteur Fou
Genre : Masculin Masculin Inscription : 04/12/2008
Messages : 900
Piste : Mustang Shelby GT 500 KR
Nombres de voitures : décembre 2008
Date du message : vendredi 26 juin 2009 à 14h02
Salut, encore un sacré boulot en perspective pour celui qui sera tenté. Cela deviens vraiment un travail d'orfèvre que tu nous fait Sergio.
@+
Olive et bon Slot
AmericaBlst en N-Digital Blst
New Man Car Fan
Mon Blog : http://americablst.e-monsite.com/
Date du message : dimanche 28 juin 2009 à 16h05
Sh1v3r a écrit :Pas de problème !vivement que je termine mes plans initiales et que je te les envois pour que tu me les finalises
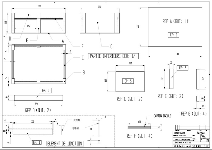
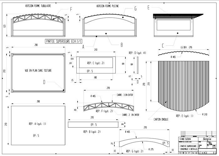
Un petit rappel........suivant cette photo , voici les plans pour une réalisation facile de stand(s) avec 2 versions pour la réalisation des fermes , une un peu plus difficile pour les puristes et une très facile...
voici la photo de départ....
et voici les plans réduits pour le forum......



Pour la réalisation des fermes version tubulaire , voici la technique que j'avais employé pour ma passerelle .
Après avoir fait un tracé éch:1 , quelques clous sans tête pour mettre en forme le bois (si les rayons de courbures sont trop importants , faire tremper les morceaux dans de l'eau tiède pendant 1 à 2 heures )
ensuite suivant le plan , ajuster tout les morceaux inter et coller à la super glue.
voici un exemple de réalisation..
Voilou........ plans dispo. éch:1
Sergio
dbr9
Sloteur Fou
Date du message : dimanche 28 juin 2009 à 23h35
bein avec tout ça on va plus savoir lequel choisir
mais en tout cas,c'est du super beau booulot comme d'hab
![]()
grand adepte du "do it yourself"
aysamamaju
Jeune Padawan sloteur
Genre : Masculin Masculin Inscription : 31/12/2007
Messages : 55
Nombres de voitures : aysamamajuel
Date du message : dimanche 4 octobre 2009 à 11h17
Bonjour Sergio
Est ce que vous voudriez bien m'envoyer les plans de la tribune cintrée (avec les escaliers) avec une meilleure définition car je ne vois rien des cotes dès que je l'imprime.
Merci par avance Sergio !
@ +
Aymeric
aymericrousseau@free.fr
Date du message : dimanche 4 octobre 2009 à 18h36
aysamamaju a écrit :Bonjour Sergio
Est ce que vous voudriez bien m'envoyer les plans de la tribune cintrée (avec les escaliers) avec une meilleure définition car je ne vois rien des cotes dès que je l'imprime.
Merci par avance Sergio !
@ +
Aymeric
aymericrousseau@free.fr
Salut,
je t'ai envoyé les plans , mais tu me parles d'escaliers? c'est quoi ?
Sergio

