JL63 a écrit :NicoBi76 a écrit : Moi je dirai vu l 'espace et la hauteur sous plafond et le toit qui est incliné, je serai partisan de mettre contre le mur plutôt que de le relevé.
Because , a cause de l'inclinaison du toit ,soit tu laisse ton châssis horizontal et tu vas perdre de la hauteur (a partir du point le plus bas sol/poutre + hauteur de corde avec poulies )ou tu suis l inclinaison et on a un châssis qui penchera.
combien de hauteur sol /poutre du point le plus haut et du point le plus bas ??
un petit 2 m au plus bas
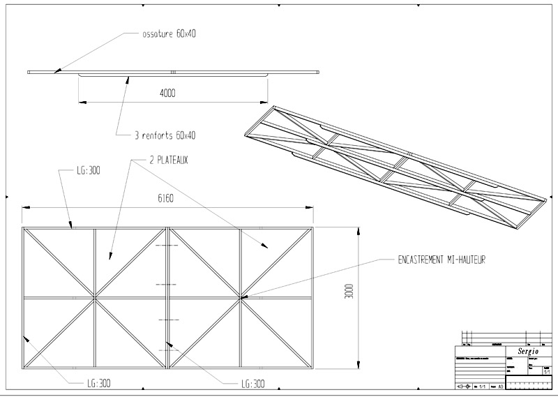
environ 3 m au plus hautle plateau doit rester horizontal, pour avoir une cinématique la plus simple possible
Ca veut dire que ca sera plutot 1m80 que 2m et donc pour récupérer de l'espace en dessous ca va pas être très agréable... en effet il faut compter l'espace occupé par les poulies et l'épaisseur du plateau.
Il va falloir faire un compromis avec toutes ces contraintes. Ou diminuer la surface du plateau et le mettre sous le point le plus haut uniquement, ce qui au final est peut être mieux que de vouloir de la surface à tout prix et pénaliser tout le reste (en plus tu pourras faire le tour du plateau)













