Salut à tous.
Voila je me lance le digital 132 est commander reste plus qu' à aménager ma pièce dans mon sous-sol pour pouvoir se taper la bourre avec mon fiston la maman et mes potos
Donc ceci resteras fixe et je compte y faire une déco dont je rêvais quand j'etait gamin pour justement faire rêver le mien :D
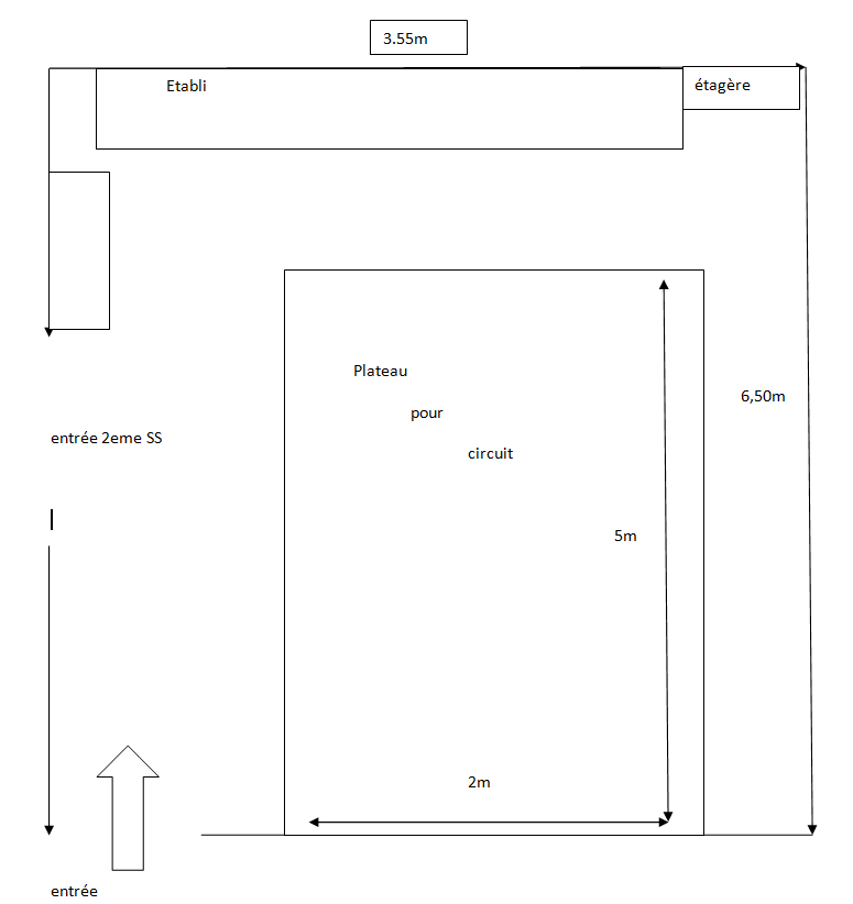
Mais pour cela j'avais comme projet d'y aménager donc la partie du fond de la pièce sur ces dimensions indiqués .

et en réfléchissant bien , j'examine pas mal les tracés sur UR 3.0 et je me rend compte que c'est pas mal mais cela reste comme même limité pour y faire quelque chose de vraiment correct a mon gout! c'est bien la carrera 1/32 mais faut de la place c'est clair!
j'ai donc décidé de ramenager ma pièce au final et me servir du reste pour y mettre un plus grand plan pour que cela soit plus zolie et plus spacieux pour la piste et lui faire un decor correct sans que tout soit entassé.
donc je me suis dit que si je disposais l'etabli le long des 3.60 m en y glissant une étagère sur le coté hop c'est pil poil. au final cette piece me sert a bricoler sur l'etabli et ranger tout mes outils produits etc donc bon je me suis dit je vais l'exploiter :D
Du coup je vais commencer sa tranquillement la semaine prochaine en faisant ce genre de chose : 
Voila cela commence a être un peu plus intéressant pour pouvoir avoir quelque chose de mieux .
Maintenant quelques questions se pose dans ma tête
la planche je la colle contre le mur de droite sur tout le long ou pas ? si c'est le cas je gagne encore en largeur mais galère pour ramasser une voiture qui sort du circuit a 2m l'autre bout ... :/ et on aura pas accès derrière mais bon j'en voit plein sur le forum dans le meme cas a votre avis ?
Je voulais mettre un bon tasseau tout le long en contact du mur ensuite est obligatoire de faire un cadre ? pour la planche(osb 22) je pensais mettre des poteau carré en 10/10 car jai deja et c de la recup en dessous éparpille en quinquance je pense pas que cela viendrais a bouger, les planches du dessus je les fixerais ensemble .
A votre avis...qu'en pensez vous que feriez vous avec une pièce du genre alors que je veut comme même garder mon petit établi etc pour bricoler ^^ N’hésitez pas je prends toutes vos remarques
A plus Dav.




pas mal l'idée de découpe suivant le tracé oui c'est clair.





























