Essai 3D cabine start pour idée vision...


Message

Sergio
Jedï d'honneur

Voir plus


Date du message : mardi 1 décembre 2009 à 22h09


Salut,

Pour voir ce que ça donne...

vos critiques sont les bienvenues.....peut être déjà le toit ... hein?

Sergio

Message

crazycowboy
Sloteur Fou

Voir plus


Date du message : mercredi 2 décembre 2009 à 03h58


Salut Sergio,

Encore une bonne idée. Je trouve que le bas fait un peu brouillon avec tous ces croisillons et les 2 échelles.
Quant au toit, peut-être légèrement incliné ou légèrement arrondi vers l'arrière ou encore à 2 pans, un peu comme sur les photos ci-dessous.

A 2 pans

Arrondi


Un cowboy regarde toujours devant, jamais derrière. En course, c'est pareil !!! Hiiiiiaaaaaah!

Message

Sergio
Jedï d'honneur

Voir plus


Date du message : mercredi 2 décembre 2009 à 19h03


Salut !

T'as raison crazy...et plus je regarde....moins ça me plait c'est du déjà vu... alors hop...virement complet...



Alors ? vous en pensez quoi ? tous les avis sont bon à prendre pour améliorations ou changement complet

Sergio

Message

will666
Jedï d'honneur

Voir plus


Date du message : mercredi 2 décembre 2009 à 20h04


interessant le coté "suspendu" du haut vent, niveau réalisation, ca va rendre

Message

crazycowboy
Sloteur Fou

Voir plus


Date du message : mercredi 2 décembre 2009 à 22h18


Salut,

Quelles seraient les dimensions approximatives de cette cabine start?

L'idée des murs et des barrières n'est pas mal du tout.
J'adore le toit suspendu.
La structure des pieds est originale, me plaît, mais quelque-chose me chagrine et je ne sais pas trop bien quoi. Peut-être les pieds sont trop en retrait de la plate-forme. Question stabilité, qu'en penses-tu?

Sur le devant, une portion de mur de chaque côté avec des barrières entre les 2 : quelque-chose comme çà, mais mieux fait.


Un cowboy regarde toujours devant, jamais derrière. En course, c'est pareil !!! Hiiiiiaaaaaah!

Message

Sergio
Jedï d'honneur

Voir plus


Date du message : mercredi 2 décembre 2009 à 23h04


crazycowboy a écrit :

Salut,
Quelles seraient les dimensions approximatives de cette cabine start?
L'idée des murs et des barrières n'est pas mal du tout.
J'adore le toit suspendu.
La structure des pieds est originale, me plaît, mais quelque-chose me chagrine et je ne sais pas trop bien quoi. Peut-être les pieds sont trop en retrait de la plate-forme. Question stabilité, qu'en penses-tu?
Sur le devant, une portion de mur de chaque côté avec des barrières entre les 2 : quelque-chose comme çà, mais mieux fait.

Salut S. crazy

Merci pour tes remarques , je penses aussi qu'il y a un petit schmol quelque part ...
la cabine fait 200 mm de long (c'est pour celà que j'avais mis la bagniole pour voir les proportions) , je pense que les pieds sont bons , mais l'avancée en porte à faux est trog grande (je vais réduire ) et aussi les piliers sont un peu trop haut, ça va diminuer l'inclinaison des tirants.
Bien l'idée pour les morceaux de murs à l'avant et peut être avec un petit retour.
Bon , je modifie tout ça pour voir.
Tous les avis sont bon à prendre pour arriver à un truc sympa....avant d'attaquer les plans !

Sergio

Message

Sergio
Jedï d'honneur

Voir plus


Date du message : jeudi 3 décembre 2009 à 18h37


Salut ,

bon voici après quelques modifs....






alors ?

j'ai aussi modifié la version 60-70...




Vos remarques sont les bienvenues et quelle version préférez vous ?

Sergio

Message

frogw650
Lord of the ring

Voir plus


Date du message : jeudi 3 décembre 2009 à 18h56


Sergio a écrit :

Salut ,

bon voici après quelques modifs....


alors ?

j'ai aussi modifié la version 60-70...


Vos remarques sont les bienvenues et quelle version préférez vous ?

Sergio

franchement tu es super si je peux me permettre les ecrans plats en 60/70 me genent un peu il fallait bien trouver un détail qui cloche

la precision conduit à l excellence

Message

Sergio
Jedï d'honneur

Voir plus


Date du message : jeudi 3 décembre 2009 à 19h04


frogw650 a écrit :

franchement tu es super si je peux me permettre les ecrans plats en 60/70 me genent un peu il fallait bien trouver un détail qui cloche

T'as raison pour version 60-70 je vais mettre des écrans à tube !!!
Sergio

Message

Gentlemandriver
Visiteur


Date du message : jeudi 3 décembre 2009 à 21h52


Sergio a écrit :

frogw650 a écrit :
franchement tu es super si je peux me permettre les ecrans plats en 60/70 me genent un peu il fallait bien trouver un détail qui cloche

T'as raison pour version 60-70 je vais mettre des écrans à tube !!!
Sergio

Oui les fameux tubes des années 60/70

Message

siffert
Jedï d'honneur

Voir plus


Date du message : vendredi 4 décembre 2009 à 11h03


Sergio a écrit :

frogw650 a écrit :
franchement tu es super si je peux me permettre les ecrans plats en 60/70 me genent un peu il fallait bien trouver un détail qui cloche

T'as raison pour version 60-70 je vais mettre des écrans à tube !!!
Sergio

Si tu fais les eighties , tu pourras mettre un Minitel !

Le peu que je sais, c'est à mon ignorance que je le dois.
Sacha Guitry

Message

Sergio
Jedï d'honneur

Voir plus


Date du message : vendredi 4 décembre 2009 à 11h40


siffert a écrit :

Sergio a écrit : frogw650 a écrit :
franchement tu es super si je peux me permettre les ecrans plats en 60/70 me genent un peu il fallait bien trouver un détail qui cloche
T'as raison pour version 60-70 je vais mettre des écrans à tube !!!
Sergio
Si tu fais les eighties , tu pourras mettre un Minitel !


j'ai viré les écrans plats , pour les remplacer (ça prend de la place !).
J'ai aussi rajouté en parties latérales des bandeaux...


Sergio

Message

frogw650
Lord of the ring

Voir plus


Date du message : vendredi 4 décembre 2009 à 17h24


Sergio a écrit :

siffert a écrit : Sergio a écrit : frogw650 a écrit :
franchement tu es super si je peux me permettre les ecrans plats en 60/70 me genent un peu il fallait bien trouver un détail qui cloche
T'as raison pour version 60-70 je vais mettre des écrans à tube !!!
Sergio
Si tu fais les eighties , tu pourras mettre un Minitel !


j'ai viré les écrans plats , pour les remplacer (ça prend de la place !).
J'ai aussi rajouté en parties latérales des bandeaux...


Sergio

super que penses tu de fermer avec des vitres la version 60/70 à l'époque nous n'avions pas le réchauffement climatique alors il devait y avoir un petit peu ^plus de pluie

la precision conduit à l excellence

Message

crazycowboy
Sloteur Fou

Voir plus


Date du message : vendredi 4 décembre 2009 à 19h57


Salut,

Pas mal les 2 versions. Je pense quand même que dans celle de 60/70 tu devrais enlever une échelle.
J'aime bien l'aménagement intérieur de cette version. Donc pour garder cette configuration, il faudrait enlever celle de derrière.

Si tu fais des fifties, tu pourras mettre un téléphone à manivelle


Un cowboy regarde toujours devant, jamais derrière. En course, c'est pareil !!! Hiiiiiaaaaaah!

Message

Sergio
Jedï d'honneur

Voir plus


Date du message : dimanche 6 décembre 2009 à 10h45


Salut ,

Voici une 2ème version cabine "60-70" pour supprimer les croisillons....

C'est mieux ?

2ème version cabine "2000"...

Mieux par rapport à la 1ère version ??

Sergio

Message

frogw650
Lord of the ring

Voir plus


Date du message : dimanche 6 décembre 2009 à 11h14


Sergio a écrit :

Salut ,

Voici une 2ème version cabine "60-70" pour supprimer les croisillons....



C'est mieux ?

2ème version cabine "2000"...



Mieux par rapport à la 1ère version ??

Sergio

j'adore cette new version 60/70
tu pourrais essayer avec des vitres juste pour voir

la precision conduit à l excellence

Message

Sergio
Jedï d'honneur

Voir plus


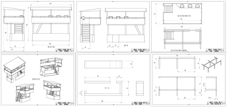
Date du message : mercredi 9 décembre 2009 à 21h12


Salut !

bon , c'est parti pour les plans de ça......

les plans (en format A3 et A4)

voilou... comme d'hab. pour les plans HD

Sergio

Message

frogw650
Lord of the ring

Voir plus


Date du message : mercredi 9 décembre 2009 à 21h42


Sergio a écrit :

Salut !

bon , c'est parti pour les plans de ça......


les plans (en format A3 et A4)



voilou... comme d'hab. pour les plans HD

Sergio

salut sergio, pour les plans je suis ok en A4 mais je vais quand meme essayer de bidouiller pour mettre des vitres

la precision conduit à l excellence

Message

all4tabs
Sloteur Fou

Voir plus


Date du message : mercredi 9 décembre 2009 à 22h12


Sergio a écrit :

Salut !

bon , c'est parti pour les plans de ça......


les plans (en format A3 et A4)



voilou... comme d'hab. pour les plans HD

Sergio

Salut Sergio partant pour les plans A4

@+
Olive et bon Slot

AmericaBlst en N-Digital Blst
New Man Car Fan
Mon Blog : http://americablst.e-monsite.com/

Message

Sergio
Jedï d'honneur

Voir plus


Date du message : mercredi 9 décembre 2009 à 22h17


Salut

Petite précision: pour échelle 1/1 certains formats sont en A3 , d'autres en A4

Bon, si je ne retouve pas votre adresse (sauf Olive !) , envoyez moi un MP

Sergio

Surveiller Imprimer