Château d'eau.....


Message

Sergio
Jedï d'honneur

Voir plus


Date du message : jeudi 24 septembre 2009 à 19h04


ludooo3o a écrit :

ça me parais pas mal tout ça

je pense aussi que ce n'est pas trop mal , surtout quand je le met en vue de face.

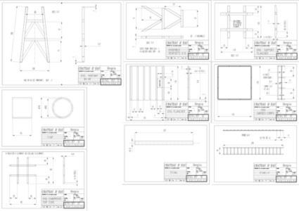
Bon j'attaque les plans , et quand j'aurais tout fait , je ferais un transfert de tous le 3D dans un autre dossier pour le réduire pour être à l'échelle 1/43.
En théorie , les plans devrait suivre automatiquement. (en théorie car quelque fois il y a des cotes qui se débinnent )

départ du plan d'ensemble...

Sergio

Message

Gentlemandriver
Visiteur


Date du message : jeudi 24 septembre 2009 à 20h13


Excellent comme ça.

Message

ludooo3o
Jeune Padawan sloteur

Voir plus


Date du message : jeudi 24 septembre 2009 à 20h22


vivement la suite

[url=http://gentlemendrivers.xooit.fr][img]http://lestracesdegd.comxa.com/l/l.gif[/img][/url]

Message

Denis
Sloteur Fou

Voir plus


Date du message : jeudi 24 septembre 2009 à 21h10


çà part bien cette affaire

Denis.

Message

Sergio
Jedï d'honneur

Voir plus


Date du message : dimanche 27 septembre 2009 à 22h01


salut!

les plans sont fait

voilou...
pour ludooo je vais sur ton forum pour le 1/43.

Sergio

Message

Sergio
Jedï d'honneur

Voir plus


Date du message : jeudi 1 octobre 2009 à 18h27


Salut!

c'est parti ! et pour corser un peu (il me reste 2 boites d'allumettes ) à la méthode "François Pignon" . ..

Sergio

Message

TILOUP
Lord of the ring

Voir plus


Date du message : jeudi 1 octobre 2009 à 20h51


Bonjour monsieur Pignon !

A mon avis, tu n'auras pas la place suffisante sur ton circuit !!.......Alors il serait préférable que tu me le donne ce chateau d'eau !

Super le départ de ce projet !

Message modifié le jeudi 1 octobre 2009 à 20h52 par TILOUP

Message

zined
Lord of the ring

Voir plus


Date du message : jeudi 1 octobre 2009 à 20h59


Merci Sergio de nous donner envie comme ça

Cordialement
Denis

Message

Sergio
Jedï d'honneur

Voir plus


Date du message : jeudi 1 octobre 2009 à 21h56


TILOUP a écrit :

Bonjour monsieur Pignon !
A mon avis, tu n'auras pas la place suffisante sur ton circuit !!.......Alors il serait préférable que tu me le donne ce chateau d'eau !
Super le départ de ce projet !

Eh ! dis donc! toi aussi tu fais du "Pignon" avec le barnum... non? Je le réalise pour voir si je ne me suis pas gouré dans les proportions (j'aime bien voir les conneries que l'on peut dessiner ) et si il n'est pas trop mal et comme tu le dis (s....p)si je n'ai plus de place (p...in t'as raison) je mettrai une pancarte devant genre ""à vendre "
et toi , ça avance?
Sergio

Message

gandalf
Lord of the ring

Voir plus


Date du message : jeudi 1 octobre 2009 à 22h08


du super boulot comme d'hab sergio , bravo et

gandalf Istari sloteur

Message

zen33
Lord of the ring

Voir plus


Date du message : jeudi 1 octobre 2009 à 23h53


Sergio

Sa y est il recommence , il m’énerve

Il nous pond un truc de fou histoire de nous faire baver

Et en plus s'est top comme d’habitude

Il m’énerve, il m’énerve

mais continu j'aime sa Sergio

Message

Sergio
Jedï d'honneur

Voir plus


Date du message : vendredi 2 octobre 2009 à 13h14


Sergio

Message

zen33
Lord of the ring

Voir plus


Date du message : vendredi 2 octobre 2009 à 16h08


[quote=Sergio]


Sergio

Je ne veux pas faire le difficile mais il ne manque pas les clous qui tiennent les barreaux de l'échelle, non

.............................................

Message

zined
Lord of the ring

Voir plus


Date du message : vendredi 2 octobre 2009 à 17h56


Citation :

Je ne veux pas faire le difficile mais il ne manque pas les clous qui tiennent les barreaux de l'échelle, non

Point trop d'empressement zen33, il les avait prévus.......

Cordialement
Denis

Message

Gentlemandriver
Visiteur


Date du message : vendredi 2 octobre 2009 à 20h50


zined a écrit :

Citation :Je ne veux pas faire le difficile mais il ne manque pas les clous qui tiennent les barreaux de l'échelle, non

Point trop d'empressement zen33, il les avait prévus.......

Bien sûr !! Et avec des têtes d'épingles.






















Et en plus il en est capable alors ne rigolez pas

Message modifié le vendredi 2 octobre 2009 à 20h52 par Gentlemandriver

Message

zined
Lord of the ring

Voir plus


Date du message : vendredi 2 octobre 2009 à 21h15


Et en plus il en est capable

Cordialement
Denis

Message

zen33
Lord of the ring

Voir plus


Date du message : samedi 3 octobre 2009 à 04h10


A bon, pas possible, ………………….. n’est pas Sergio le Grand qui veut






Je suis sur qu’il va le faire juste pour nous en me.der

Message

Sergio
Jedï d'honneur

Voir plus


Date du message : dimanche 4 octobre 2009 à 18h25


zen33 a écrit :

A bon, pas possible, ………………….. n’est pas Sergio le Grand qui veut
Je suis sur qu’il va le faire juste pour nous en me.der


j'vais mais pas pour vous emm..der !

Sergio

Message

Gentlemandriver
Visiteur


Date du message : dimanche 4 octobre 2009 à 20h56


Sergio a écrit :

zen33 a écrit : A bon, pas possible, ………………….. n’est pas Sergio le Grand qui veut
Je suis sur qu’il va le faire juste pour nous en me.der


j'vais mais pas pour vous emm..der !

Sergio

Sacré Sergio, il faut pas le défier. J'aime ça.

Message

Sergio
Jedï d'honneur

Voir plus


Date du message : lundi 5 octobre 2009 à 18h18


Salut !

ça a avancé un petit peu ce WE avec quelques modifs....

pas encore fait les clous pour l'échelle

Sergio

Surveiller Imprimer