Ben nan la seul dim sur laquelle je me suis basé c'est la hauteur de la Pelle a roue sur la droite,elle mesure env 2.70 de haut, ce qui me donne aproximativement une echelle 1/75 sur la photo (en centimétre) Aprés j'ai rabaissé a 8m de haut la hauteur du batiment et reclacule a 1/32.
Enfin doucement mais surement. Je comptais la faire en carton de calendrier.
Ok....bon on va faire un HELP!!!!!!!pour si quelqu'un connait à peu près les dimensions et dès que j'ai un moment j'attaque les plans Sergio Auteur Message NicoBi Lord of the ring 
Genre : Masculin Masculin Inscription : 16/06/2007 Messages : 1.180 Piste : Porsche Nombres de voitures : 2007
Voir plus
Date du message : samedi 22 mars 2008 à 09h46
Ca serai un coup de bol j'ai déjà fais la demande mais rien . Et puis cette tour est détruite depuis 2000 donc à moins de tomber sur l'architecte ou le petit fils de l'architecte sur ce forum,ce qui serait un miracle ,je vais faire ça un peu au pif en éspérent être le plus prés de la réalité.
Mais si tu as des conseils a me filer pour réalisé des plans ou cette tour n'hésite pas je suis preneur.  ---------------------------
"Je ne pouvais pas trouver la voiture de sport de mes rêves, alors je l'ai construite moi-même"F.PORSCHE Message modifié le samedi 22 mars 2008 à 09h47 par NicoBi Auteur Message Sergio Jedï d'honneur Genre : Masculin Masculin Inscription : 06/02/2007 Messages : 2.128
Voir plus
Date du message : mercredi 26 mars 2008 à 12h40
| NicoBi76 a écrit : | Ca serai un coup de bol j'ai déjà fais la demande mais rien . Et puis cette tour est détruite depuis 2000 donc à moins de tomber sur l'architecte ou le petit fils de l'architecte sur ce forum,ce qui serait un miracle ,je vais faire ça un peu au pif en éspérent être le plus prés de la réalité.
Mais si tu as des conseils a me filer pour réalisé des plans ou cette tour n'hésite pas je suis preneur.
Salut!! premier "jus" pour le plan de la tour 'YACCO'

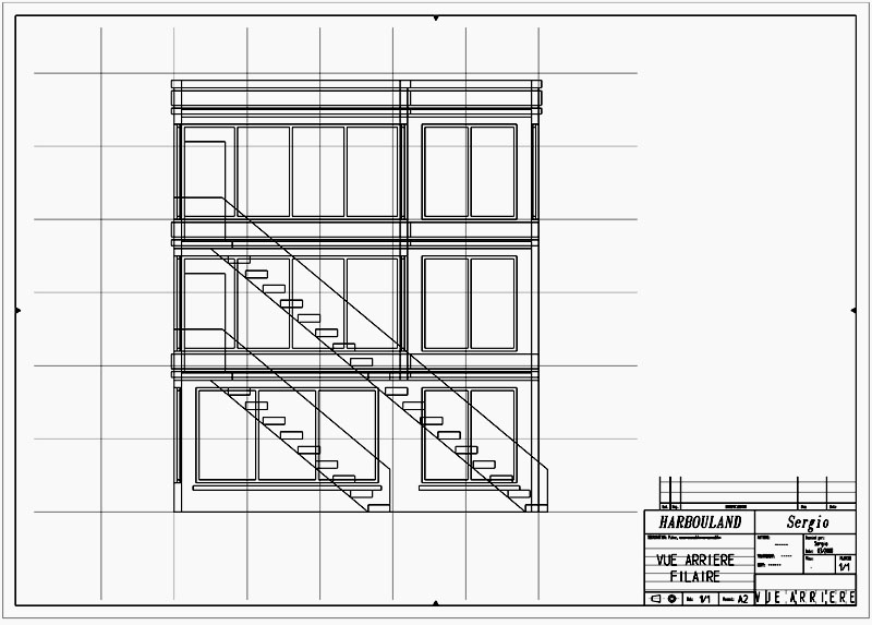
mais pour l'arrière du bâtiment ???? quelqu'un aurait des renseignements ? porte d'entrée, vitrages, .... on dirait qu'il y a un escalier en dur ???
Sergio Auteur Message mrclean Jedï d'honneur 
Genre : Masculin Masculin Inscription : 06/03/2007 Messages : 2.854 Piste : slot-it Nombres de voitures : au moins tout ça
Voir plus
Date du message : mercredi 26 mars 2008 à 12h58
et non sergio , il ya deux escaliers


Mr CLEAN est le HITMAN du slot Auteur Message NicoBi Lord of the ring 
Genre : Masculin Masculin Inscription : 16/06/2007 Messages : 1.180 Piste : Porsche Nombres de voitures : 2007
Voir plus
Date du message : mercredi 26 mars 2008 à 13h17
Put..c'est bôooooo Sergioooooo J'vais arreter mes plans papier millimétré.
Pour l'arriére j'ai pas trouvé mieux que la photos de Mr Clean,va falloir y aller au pif . Est ce que cela te dérengerais de me donner tes côtes car c'est un peu trouble mais j'ai peur que j'ai un peu sous estimé cette tour ??
Merci pour cet aperçu en 3d.  ---------------------------
"Je ne pouvais pas trouver la voiture de sport de mes rêves, alors je l'ai construite moi-même"F.PORSCHE Auteur Message Sergio Jedï d'honneur Genre : Masculin Masculin Inscription : 06/02/2007 Messages : 2.128
Voir plus
Date du message : mercredi 26 mars 2008 à 13h21
| mrclean a écrit : | | et non sergio , il ya deux escaliers
Merci mrclean !! Je vois que j'ai mis des fenêtres en trop sur le coté (j'vais faire modif) c'était pas facile à voir avec la photo. pour les escaliers c'est OK (je vais les tracer) mais c'est juste des portes d'entrées ?? il y avait des fenêtres ? et en bas du bâtiment , des ouvertures ? merci les slotteurs !! si vous avez d'autres renseignements Sergio Auteur Message Sergio Jedï d'honneur Genre : Masculin Masculin Inscription : 06/02/2007 Messages : 2.128
Voir plus
Date du message : mercredi 26 mars 2008 à 14h11
| NicoBi76 a écrit : | Put..c'est bôooooo Sergioooooo J'vais arreter mes plans papier millimétré.
Pour l'arriére j'ai pas trouvé mieux que la photos de Mr Clean,va falloir y aller au pif . Est ce que cela te dérengerais de me donner tes côtes car c'est un peu trouble mais j'ai peur que j'ai un peu sous estimé cette tour ??
Merci pour cet aperçu en 3d.
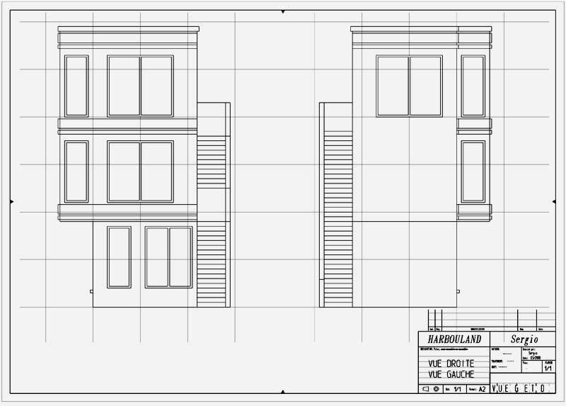
Salut! pour les côtes, voilà ce que jai estimé: Ech: 1/32 H:295 Lg:250 lg:114 et 149 partie haute ce qui fait environ Ech: 1/1 H: 9,50m Lg:8m lg: 3,70m et 4,70m sup.
voilou, bon si tu es sage , je t'enverrais le ou les plans quand ils seront terminés....
Sergio Auteur Message NicoBi Lord of the ring 
Genre : Masculin Masculin Inscription : 16/06/2007 Messages : 1.180 Piste : Porsche Nombres de voitures : 2007
Voir plus
Date du message : mercredi 26 mars 2008 à 18h01
RRRooooooHHHHHHHh moi j'suis tjrs sage comme une image C'est ma Maman qui me l'a dit 
Pour l'éscalier, j'ai fait un étage intermédiare( sur mes plans) mais sur la photo(noir et blanc)j'ai l'impréssion qu'il n'y a pas de passage intermédiare entre les deux niveaux. En regardant l'angle d'inclinaison des deux escaliers ont s'aperçois qu'ils sont égaux(ou presque.. où ilusion de la photo) et qu'un palier suplementaire n'existe pas.
D'autre part sur la photo couleur on voit le début de l'éscalier du premier étage mais on ne voit pas de palier intermédiare,je suis vraiment curieux de voir cet éscalier.
Ps: merci pour les côtes. ---------------------------
"Je ne pouvais pas trouver la voiture de sport de mes rêves, alors je l'ai construite moi-même"F.PORSCHE Message modifié le mercredi 26 mars 2008 à 18h02 par NicoBi Auteur Message Sergio Jedï d'honneur Genre : Masculin Masculin Inscription : 06/02/2007 Messages : 2.128
Voir plus
Date du message : mercredi 26 mars 2008 à 20h41
| NicoBi76 a écrit : | RRRooooooHHHHHHHh moi j'suis tjrs sage comme une image C'est ma Maman qui me l'a dit
Pour l'éscalier, j'ai fait un étage intermédiare( sur mes plans) mais sur la photo(noir et blanc)j'ai l'impréssion qu'il n'y a pas de passage intermédiare entre les deux niveaux. En regardant l'angle d'inclinaison des deux escaliers ont s'aperçois qu'ils sont égaux(ou presque.. où ilusion de la photo) et qu'un palier suplementaire n'existe pas.
D'autre part sur la photo couleur on voit le début de l'éscalier du premier étage mais on ne voit pas de palier intermédiare,je suis vraiment curieux de voir cet éscalier.
Ps: merci pour les côtes.
Salut!! quelques copies d'écran ( des suggestions pour le mur arrière??)



Sergio Auteur Message Sergio Jedï d'honneur Genre : Masculin Masculin Inscription : 06/02/2007 Messages : 2.128
Voir plus
Date du message : mercredi 26 mars 2008 à 20h44
Bien sûr, ne pas tenir compte des couleurs !! c'est le logitiel pour les dif. couches Sergio Auteur Message NicoBi Lord of the ring 
Genre : Masculin Masculin Inscription : 16/06/2007 Messages : 1.180 Piste : Porsche Nombres de voitures : 2007
Voir plus
Date du message : mercredi 26 mars 2008 à 22h24
Je n'y avais pas pensé au deux escaliers,c'est une possibilité . Il manque juste les deux fenêtres et c'est ressemblant comme deux gouttes d'eau. Super travail Sergio ---------------------------
"Je ne pouvais pas trouver la voiture de sport de mes rêves, alors je l'ai construite moi-même"F.PORSCHE Auteur Message Date du message : jeudi 27 mars 2008 à 09h04
bien vos travaux là !!!! tres sympas !! il y a peut etre un collimasson a l'interieur ! non ??? . . . . . . L'humour noir, c'est comme le boudin blanc, c'est une question de gout ... Auteur Message philvit Bargeots Genre : Masculin Masculin Inscription : 10/02/2008 Messages : 188 Nombres de voitures : 1999
Voir plus
Date du message : jeudi 27 mars 2008 à 12h59
Auteur Message philvit Bargeots Genre : Masculin Masculin Inscription : 10/02/2008 Messages : 188 Nombres de voitures : 1999
Voir plus
Date du message : jeudi 27 mars 2008 à 13h02
et cette vu de face qui ne laisse pas entrevoir de vitres arrieres

philvit Auteur Message NicoBi Lord of the ring 
Genre : Masculin Masculin Inscription : 16/06/2007 Messages : 1.180 Piste : Porsche Nombres de voitures : 2007
Voir plus
Date du message : jeudi 27 mars 2008 à 15h13
Beau boulot de recherhe Philvit !! Merci. ---------------------------
"Je ne pouvais pas trouver la voiture de sport de mes rêves, alors je l'ai construite moi-même"F.PORSCHE Auteur Message Sergio Jedï d'honneur Genre : Masculin Masculin Inscription : 06/02/2007 Messages : 2.128
Voir plus
Date du message : jeudi 27 mars 2008 à 18h43
Salut! oui, merci Philvit, je les ai vu sur le 'net', mais pas moyen d'en trouver une de derrière je pense que ça devait être ça ...?
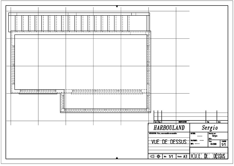
pour NicoBi76 voici le plan à jour....

et puis voici les plans avec quadrilllage tous les 50 mm...




Voilou si tu veux les plans ech:1/1 en .jpg , fais moi un MP pour ton mail et je te les envoi.
Sergio
Si tu le réalises, mets des photos  Auteur Message NicoBi Lord of the ring 
Genre : Masculin Masculin Inscription : 16/06/2007 Messages : 1.180 Piste : Porsche Nombres de voitures : 2007
Voir plus
Date du message : jeudi 27 mars 2008 à 20h32
Bonsoir,
Bien sûr que je vais réaliser,on va pas finir commme ça et moi le gachis j'aime pas.
Super boulot à tous et merci.
J't'envoie un mp pour les plans. ---------------------------
"Je ne pouvais pas trouver la voiture de sport de mes rêves, alors je l'ai construite moi-même"F.PORSCHE
Surveiller
Imprimer
|
|
|
|
|