Barnum...cocktail....et interview pilotes


Message

Sergio
Jedï d'honneur

Voir plus


Date du message : jeudi 30 octobre 2008 à 19h18


Salut

euh......voilà....avant de continuer les plans de détais, et si ça convient....j'ai fait ça pour l'un d'entre

vous....mais je ne retrouve pas le mail

(j'en ai tellement que j'ai du "scratcher" en faisant du ménage )

si c'est l'un d'entre vous, mettez moi un message sur ce post, (plus facile pour retrouver après) voilou.

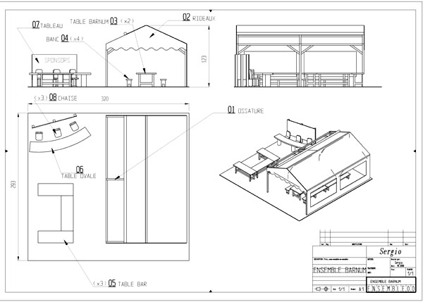
pour info lg: 320mm prof: 295mm hauteur: 125

je n'ai pas dessiné les "boutanches et les "amuses-gueules"

voilou
Sergio

Message

Sergio
Jedï d'honneur

Voir plus


Date du message : jeudi 30 octobre 2008 à 19h33


oups
j'ai oublié de préciser qu'il n'y avait pas de DEAL
Sergio

Message

TILOUP
Lord of the ring

Voir plus


Date du message : jeudi 30 octobre 2008 à 21h21


Salut SERGIO !!!

Sympa ce projet, ça peut donner des idée !!!

Message

Sergio
Jedï d'honneur

Voir plus


Date du message : jeudi 30 octobre 2008 à 21h29


TILOUP a écrit :

Salut SERGIO !!!

Sympa ce projet, ça peut donner des idée !!!

Salut TILOUP!

j'suis en train de faire le plan pour le barnum (ça peut servir pour plus tard )
si ça t'intéresse, je te l'enverrais
j'frait le reste dans la foulée..
Sergio

Message

Matt
Fabricant

Voir plus


Date du message : jeudi 30 octobre 2008 à 22h00


A y est ,encore un nouveau projet de dingue

Bravo Sergio , je suis fan de tes réalisations

********************************
[URL=http://img3.imageshack.us/i/mattvectorized.png/][IMG]http://img3.imageshack.us/img3/7725/mattvectorized.png[/IMG][/URL]

Cliquez sur l'avatar pour accéder au site !

Message

Sergio
Jedï d'honneur

Voir plus


Date du message : vendredi 31 octobre 2008 à 17h40


Salut!

j'ai retrouvé celui qui m'avait demandé ça

je met les plans réduits pour info. si ça intéresse , je peux les envoyer à éch:1 non compressé, mais indiquer sur ce post que vous m'avez envoyé un mp pour que je m'y retrouve.. oki

Les plans............

voilou

Sergio

Message

Valamdir
Jeune Padawan sloteur

Voir plus


Date du message : vendredi 31 octobre 2008 à 18h05


Lut' sergio, bin je crois que tu peut conserver mon mail, il va souvent te servir

mp envoyer

Message

Manou
Visiteur


Date du message : vendredi 31 octobre 2008 à 18h11


Ca s'annonce encore du beau ça ma poule

Manou

Message

Sergio
Jedï d'honneur

Voir plus


Date du message : vendredi 31 octobre 2008 à 18h29


Manou a écrit :

Ca s'annonce encore du beau ça ma poule

Salut jeune homme !

ça boum ? .......c'est quand qu'on vient boire un coup à ta buvette

Sergio

Message

Manou
Visiteur


Date du message : vendredi 31 octobre 2008 à 18h39


Sergio a écrit :

Manou a écrit : Ca s'annonce encore du beau ça ma poule

Salut jeune homme !

ça boum ? .......c'est quand qu'on vient boire un coup à ta buvette

Sergio

Et bien je vai pas tarder a attaquer le froid commence a arriver et les soirées longues alors je vai me remuer un peu

Manou

Message

TILOUP
Lord of the ring

Voir plus


Date du message : vendredi 31 octobre 2008 à 20h53


Salut SERGIO !!

Si tu veus bien m'envoyer les plans, ça m'interesse,

Je m occuperais de ce projet plus tard, j'ai encore du taf avec les stands, et commencer les tribunes

MP envoyé

PS. Tu as des spectateurs a echanger, ça pourrais m'interesser, mais je n'ai pas de caméra en échange, mais si tu es vendeur !! AFFAIRE A SUIVRE

MP envoyé pour les plans !

Message

Sergio
Jedï d'honneur

Voir plus


Date du message : vendredi 31 octobre 2008 à 22h00


TILOUP a écrit :

Salut SERGIO !!
Si tu veus bien m'envoyer les plans, ça m'interesse,
je m occuperais de ce projet plus tard, j'ai encore du taf avec les stands, et commencer les tribunes
MP envoyé
PS. Tu as des spectateurs a echanger, ça pourrais m'interesser, mais je n'ai pas de caméra en échange, mais si tu es vendeur !! AFFAIRE A SUIVRE
MP envoyé pour les plans !

Salut TILOUP!
c'est parti et encore chapeau pour tes Réals !!!!!!!!!!!!!!
Sergio

Message

TILOUP
Lord of the ring

Voir plus


Date du message : vendredi 31 octobre 2008 à 23h04


C'est Ok !! J'ai les plans, Il sont au chaud...................!!

Pour les figurines, je suis allé sur le site de Slot and Go, pour voir comment elle sont, mais impossible d'ouvrir la page ??????????

Je te tien au courant, et vois pour les frais de port .

A+

Message

crazycowboy
Sloteur Fou

Voir plus


Date du message : samedi 1 novembre 2008 à 10h14


Salut Sergio,

MP envoyé.


Un cowboy regarde toujours devant, jamais derrière. En course, c'est pareil !!! Hiiiiiaaaaaah!

Message

Sergio
Jedï d'honneur

Voir plus


Date du message : samedi 1 novembre 2008 à 11h07


crazycowboy a écrit :

Salut Sergio,
MP envoyé.
8|
8|

Salut! c'est parti
Sergio

Message

TILOUP
Lord of the ring

Voir plus


Date du message : samedi 1 novembre 2008 à 20h56


Salut Sergio !

Pas trouvé les figurines, si toi avoir photo ??

Message

ac
Bargeots

Voir plus


Date du message : samedi 1 novembre 2008 à 21h13


Boire un ptit Jack chez Manou ! pourquoi pas.
Sergio a écrit :

Manou a écrit : Ca s'annonce encore du beau ça ma poule

Salut jeune homme !

ça boum ? .......c'est quand qu'on vient boire un coup à ta buvette

Sergio

Collectionneur de miniatures Renault
http://mrcc.skyrock.com/

Message

crazycowboy
Sloteur Fou

Voir plus


Date du message : samedi 1 novembre 2008 à 21h19


Salut Sergio,

Citation :

Salut! c'est parti

MP bien reçu, merci.

Je t'envoie un mail demain soir car je ne suis pas chez moi et je ne suis pas sur mon ordi.

A+


Un cowboy regarde toujours devant, jamais derrière. En course, c'est pareil !!! Hiiiiiaaaaaah!

Message

kiasho
Jeune Padawan sloteur

Voir plus


Date du message : mardi 11 janvier 2011 à 17h26


could you email me the plans for this please

thanks

Surveiller Imprimer